03-02 雨煙内ダムData
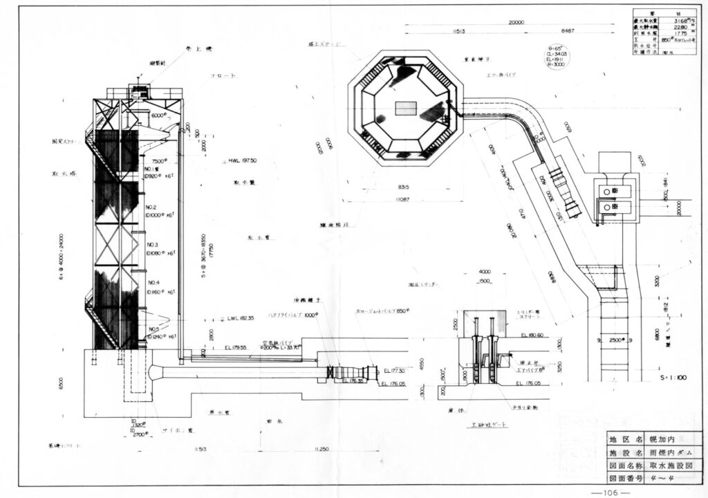
【ダム図】





【北海道開発局技術研究発表】
1965年 雨煙内ダムの嵩上げ工法について
1965年 既設アースダム材料の強さに関する調査例
【北海道土地改良設計技術協会】
2017年 報文集 雨煙内ダムの耐震性能照査について
【北海道土地改良建設業協会】
【農業農村工学会】
【ダム日本】
【ダム工学】
【ダム図】





【北海道開発局技術研究発表】
1965年 雨煙内ダムの嵩上げ工法について
1965年 既設アースダム材料の強さに関する調査例
【北海道土地改良設計技術協会】
2017年 報文集 雨煙内ダムの耐震性能照査について
【北海道土地改良建設業協会】
【農業農村工学会】
【ダム日本】
【ダム工学】