23-02

23-02 幕別ダムData

DamMaps

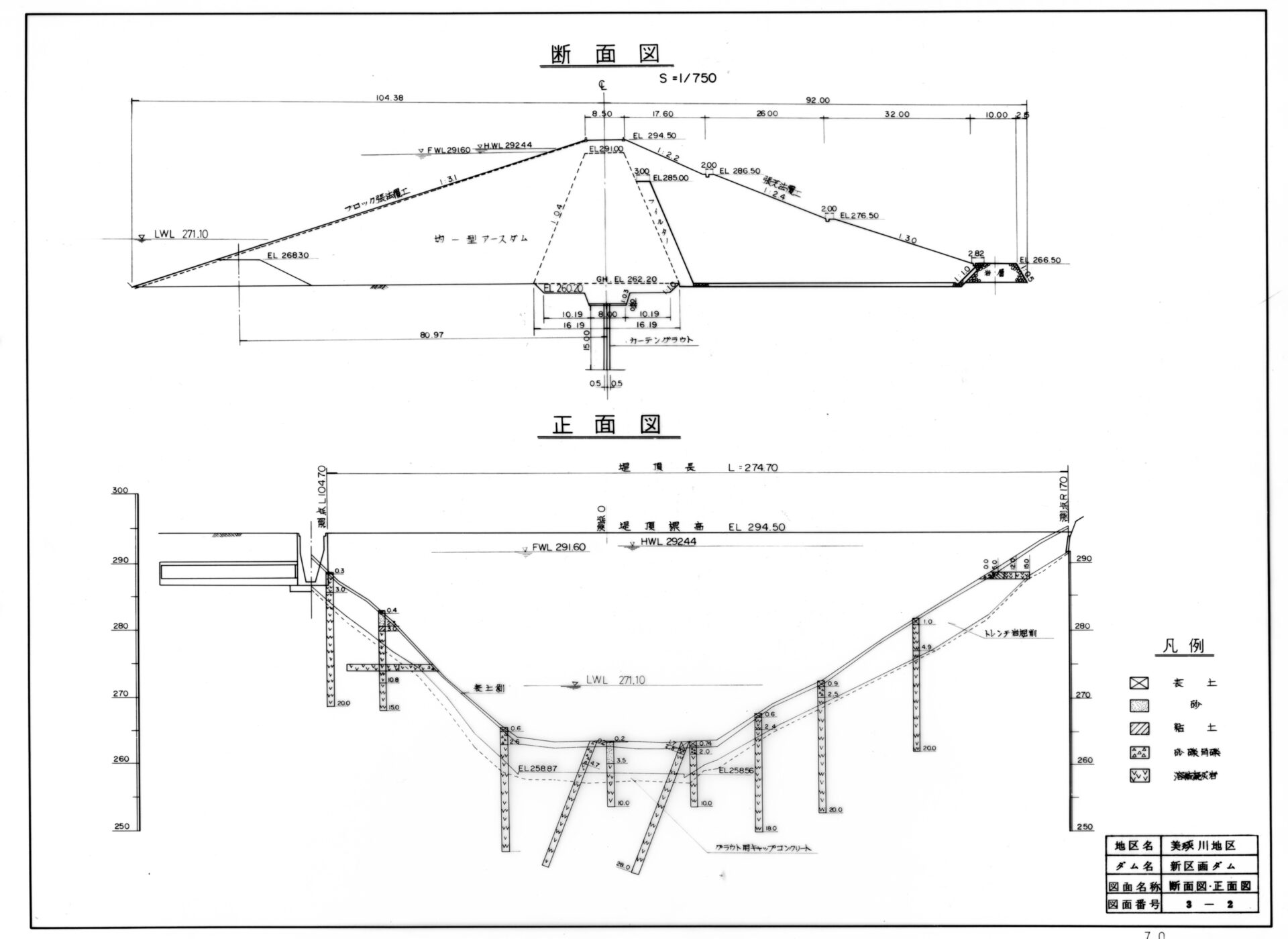
【ダム図】

未収録

ダム便覧 フォト・アーカイブス

【帯広開発建設部】

幕別ダム工事誌

【北海道開発局技術研究発表】

1978年 透水性地盤条のフィルダムの基礎設計について -畑地かんがい幕別地区計画案-

1984年 幕別ダムの設計概要

1985年 幕別ダムゾーニング及び地下連続壁について

1986年 幕別ダムの地下連続壁について

1993年 幕別ダム基礎地盤の反射法による地質調査について

1994年 幕別ダム基礎地盤室内パイピング試験について

1999年 幕別ダム洪水吐水理模型実験について

2000年 幕別ダムの設計と施工 -幕別ダムの盛立施工管理について-

2001年 幕別ダムの盛立管理について

2006年 幕別ダム試験湛水の浸透流況について

2006年 幕別ダムの十勝沖地震による被災と復旧工事

【北海道土地改良設計技術協会】

【北海道土地改良建設業協会】

【農業農村工学会】

1987年 支部講演会 幕別ダムの地下連続壁試験施工について

1994年 支部講演会 幕別ダム基礎地盤の反射法による地質調査について

1995年 支部講演会 幕別ダム基礎地盤室内パイピング試験について

2004年 72巻2号 2003十勝沖地震

2005年 73巻9号 平成15年 (2003年) 十勝沖地震の農用施設被害報告

 

【ダム日本】

23 幕別ダム